AA Studio
PROJECT INFORMATION
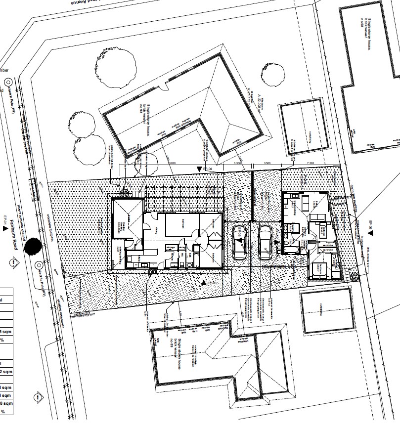
PROJECT NAME: Subdivision Project, Sunshine, VIC, 3020
LOCATION: Sunshine, VIC, 3020
DATE: 2023

Subdivision with 3-Bedroom House Project, Sunshine, VIC, 3020

A large land with an existing 3-bedroom house was subdivided with an additional 3-bedroom house located at the rear of the existing house. 

AA Studio was involved in followings:

Achieving Planning Permit from Brimbank Council. 

Preparing Building Permit and Construction Documentation.  

www.aastudio.com.au
Email Address
Phone No
Office Address
20 NEROLI CRESCENT, TRUGANINA, VIC, 3029
UP
Select the fields to be shown. Others will be hidden. Drag and drop to rearrange the order.
  • Image
  • SKU
  • Rating
  • Price
  • Stock
  • Availability
  • Add to cart
  • Description
  • Content
  • Weight
  • Dimensions
  • Additional information
Click outside to hide the comparison bar
Compare